top of page
Das Zuhause im Rahmen der Möglichkeiten

Abbildung ähnlich
Entdecken Sie unsere innovativen Lösungen für energieeffizientes Wohnen.
Unsere drei Grundrisse bieten optimalen Komfort und sind ideal für ebenerdiges, barrierefreies Leben. Nutzen Sie die Energie vom Dach mit einem Speicher für eine nachhaltige Heiztechnik.

Abbildung ähnlich
Ein Haus - 3 Grundrisse
Das Zuhause im Rahmen der Möglichkeiten

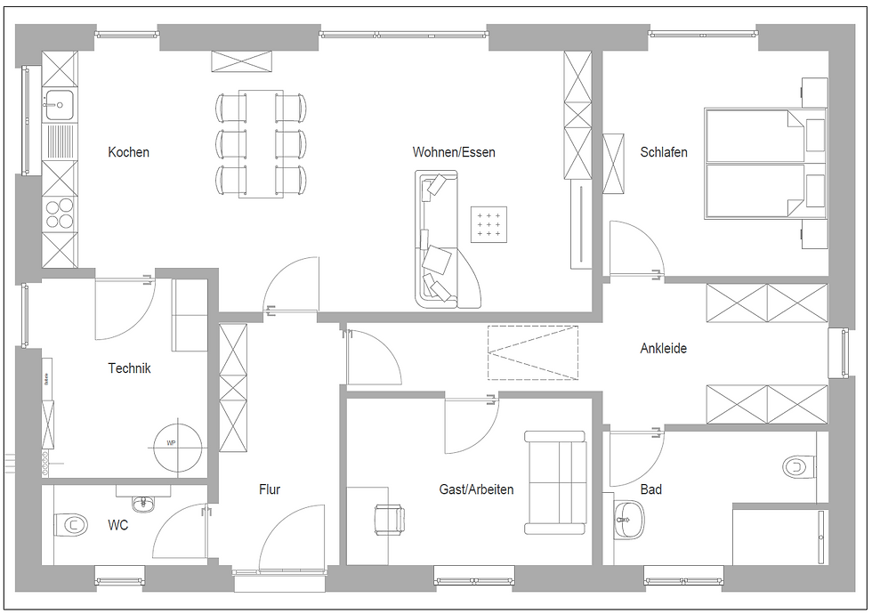
Variante 1

Variante 2

Variante 3

Variante 1
1/3
Innenräume klar strukturiert und effizient genutzt

Abbildung ähnlich

Abbildung ähnlich
Interesse geweckt?
Laden Sie sich die Bauleistungsbeschreibung jetzt herunter!
Haustyp e
bottom of page

